Brand New Designer Living in a Tightly Held Locale

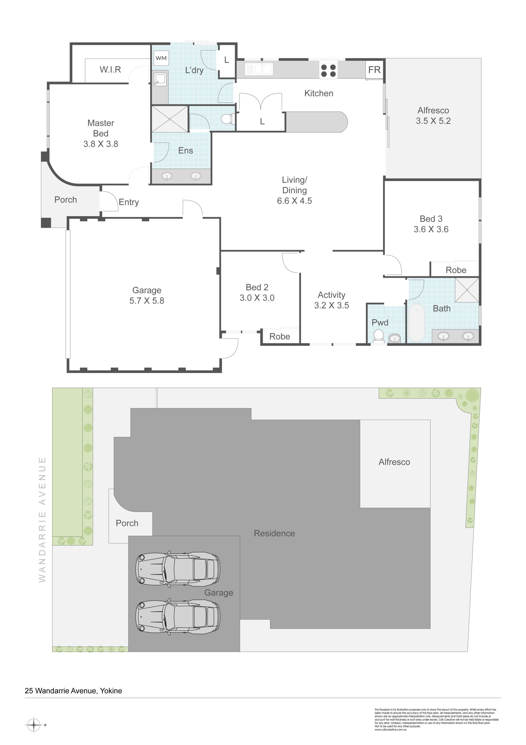
Tucked away on a quiet street, this brand new, street-front, survey-strata designer home delivers impeccable finishes, thoughtful design, and an effortless lifestyle in one of Yokine’s most tightly held pockets. Offering three generous bedrooms plus a versatile additional living space, the home immediately impresses with breathtaking open-plan living, extra-high ceilings, and LED downlights that enhance the sense of space and natural light throughout.

At the centre of the home, a chef’s kitchen ready for culinary adventures features stone benchtops, quality cabinetry, and seamless integration with the dining and living areas, creating the perfect setting for everyday living and entertaining. Ducted, zoned reverse-cycle air conditioning ensures year-round comfort, while the flexible rumpus room provides excellent versatility as a home office, playroom, or second living zone. The master suite is a true retreat, complete with walk-in robes and a private ensuite showcasing his-and-hers basins, a quality vanity, and floor-to-ceiling tiling. The second and third bedrooms are well sized with built-in robes and are serviced by a beautifully appointed family bathroom with shower, bath, and full-height tiling, complemented by a laundry with ample storage.

Sliding glass doors open to a covered alfresco area designed for relaxed entertaining, offering seamless indoor-outdoor flow for family gatherings and social occasions. Ideally positioned within the Mount Lawley Senior High School catchment and in the heart of Yokine, the location provides convenient access to Yokine Regional Open Space, Terry Tyzack Aquatic Centre, Flinders Square Shopping Centre, the Beaufort Street café strip, Perth CBD, and extensive public transport options. This outstanding home is set to attract strong interest from first home buyers, couples, small families, and investors seeking quality, comfort, and long-term value in a highly desirable locale.

Features include:

• Brand new street-front survey-strata designer home
• Three spacious bedrooms plus versatile rumpus room
• Breathtaking open-plan living ideal for families and entertaining
• Extra-high ceilings enhancing space and natural light
• LED downlights throughout
• Chef’s kitchen ready for culinary adventures with stone benchtops and quality finishes
• Ducted, zoned reverse-cycle air conditioning for year-round comfort
• Flexible rumpus room ideal as a home office, playroom, or second living area
• Master bedroom retreat with walk-in robe
• Private ensuite featuring his-and-hers basins, quality vanity, and floor-to-ceiling tiling
• Second and third bedrooms well sized with built-in robes
• Family bathroom with shower, bath, and floor-to-ceiling tiling
• Laundry with ample storage
• Covered alfresco area perfect for entertaining family and friends
• Seamless indoor-outdoor flow via sliding glass doors
• Street-front position offering independence and privacy
• Located within the Mount Lawley Senior High School catchment
• Convenient access to Yokine Regional Open Space, Terry Tyzack Aquatic Centre, Flinders Square Shopping Centre, Beaufort Street café strip, Perth CBD, and public transport

Council Rates: T.B.A.
Water Rates: T.B.A.

For further information, please contact Basil Fogliani on 0418 925 155 or Paul Holdsworth on 0407 081 050

Disclaimer: This information is provided for general information purposes only and is based on information provided by the Seller and may be subject to change. No warranty or representation is made as to its accuracy and interested parties should place no reliance on it and should make their own independent enquiries.

Show More

Property Features

  • Aircon
  • Bath: 2
  • Bedrooms: 3
  • Built in Robes
  • Courtyards
  • Dishwasher
  • Garages: 2
  • Garden
  • Internal Laundry
  • Outdoor Entertaining
  • Remote Garage
  • Reverse Cycle Aircon
  • Secure Parking

Nearby Amenities

Yokine Primary School
100m
Carmel Primary School
100m
Carmel High School
200m
Sutherland Dianella Primary School
1km
Coolbinia Primary School
1.1km
Mima Pizzeria
1km
Muffin Break
1.5km
Little Donkey Corner
1.7km
Mid-Century Cafés
1.9km
Central Cafe
2.1km
Blair Warren Reserve
400m
Breckler Park
500m
David Ben-Gurion Park
700m
Raoul Wallenberg Reserve
800m
Moulden Reserve
900m

Mortgage Calculator

$

5%

0.1%

5%

$1421

Monthly Payment

Principal & Interest $1421

Annual Fee $1421

Send Enquiry

Book Appraisal with Holdsworth Real Estate

This site is protected by reCAPTCHA and the Google Privacy Policy and Terms of Service apply.

Send Enquiry

25A Wandarrie Avenue, Yokine WA

This site is protected by reCAPTCHA and the Google Privacy Policy and Terms of Service apply.

Buy A Property

Make an Offer

25A Wandarrie Avenue, Yokine WA

Buyer 1 Details


Buyer 2 Details (if applicable)


Ownership Type


Offer Details


Conditions



This site is protected by reCAPTCHA and the Google Privacy Policy and Terms of Service apply.

Register for Inspection

25A Wandarrie Avenue, Yokine WA

This site is protected by reCAPTCHA and the Google Privacy Policy and Terms of Service apply.

Send Requirements

Find Me a Property

This site is protected by reCAPTCHA and the Google Privacy Policy and Terms of Service apply.