Private, Spacious & Full of Character!

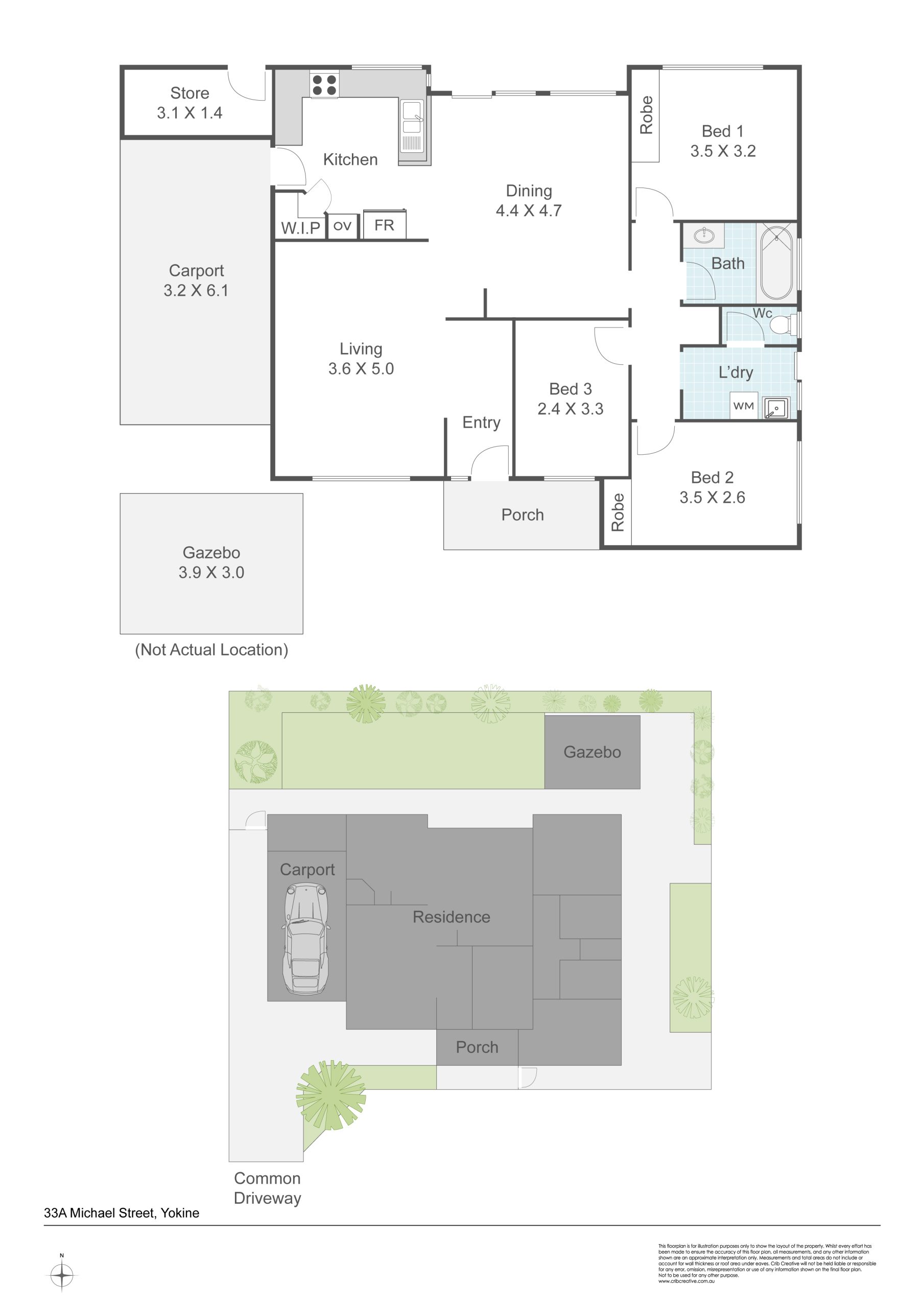
Tucked away at the rear of a small group of two, this charming home offers a rare combination of privacy, space, and character – all while being packed with modern comforts. Set on a generous 354sqm lot, it boasts two separate living areas, with slate tile flooring and exposed brick features adding warmth and timeless appeal.

The well-appointed kitchen is ready for entertaining, complete with gas cooking, a dishwasher, and ample bench and cupboard space. Enjoy the convenience of a shopper’s entry from the carport, separate W/C, and lockable external storage. Split system air conditioning, ceiling fans, gas heating points, and solar panels ensure year-round comfort and efficiency.

Step outside and discover a rare backyard haven – perfect for entertaining guests under the gazebo or relaxing in your own private retreat. Ideally located with easy access to the Western Australian Golf Club, Flinders Square Shopping Centre, and the popular Mid Century Café. With extensive public transport options nearby and the CBD just a short drive away, this is a lifestyle opportunity not to be missed.

Features include:

• Privately positioned at the rear of a small group of two
• Two separate living areas
• Shoppers entry from the carport
• Split system air conditioning in living areas
• Ceiling fans throughout
• Kitchen with gas cooking, dishwasher, plenty of bench and cupboard space
• Separate W/C
• Solar power
• Gas heating points
• Lockable external storage room
• Large backyard with gazebo – ideal for entertaining
• Slate tile flooring and exposed brick features
• Set on a generous 354m² lot
• Close to Western Australian Golf Club
• Nearby Flinders Square Shopping Centre and Mid Century Café
• Easy access to public transport
• Short drive to Perth CBD

Strata Levies: Nil
Council Rates: $1,716 p.a.
Water Rates: $1,102 p.a.

Find out your property’s worth today by contacting Paul Holdsworth on 0407 081 050 or Dante Holdsworth on 0421 672 695.

Disclaimer:
This information is provided for general information purposes only and is based on information provided by the Seller and may be subject to change. No warranty or representation is made as to its accuracy and interested parties should place no reliance on it and should make their own independent enquiries.

Show More

Property Features

  • Aircon
  • Bath: 1
  • Bedrooms: 3
  • Car Ports: 1
  • Courtyards
  • Dishwasher
  • Garden
  • Internal Laundry
  • Outdoor Entertaining
  • Reverse Cycle Aircon

Nearby Amenities

Our Lady of Lourdes School
600m
Nollamara Primary School
700m
Tuart Hill Primary School
1.2km
Tuart College
1.5km
Dianella Secondary College
1.6km
Urban Grind on Royal
1km
Little Donkey Corner
1.2km
Muffin Break
2.8km
Delio
2.9km
Micrology Coffee
3km
Woodchester Reserve
300m
Constance/Nanson Reservation
500m
Flinders Reserve
500m
Maroog Narla Reserve
700m
Brian Treasure Reserve
900m

Mortgage Calculator

$

5%

0.1%

5%

$1421

Monthly Payment

Principal & Interest $1421

Annual Fee $1421

Send Enquiry

Book Appraisal with Holdsworth Real Estate

This site is protected by reCAPTCHA and the Google Privacy Policy and Terms of Service apply.

Send Enquiry

33A Michael Street, Yokine WA

This site is protected by reCAPTCHA and the Google Privacy Policy and Terms of Service apply.

Buy A Property

Make an Offer

33A Michael Street, Yokine WA

Buyer 1 Details


Buyer 2 Details (if applicable)


Ownership Type


Offer Details


Conditions



This site is protected by reCAPTCHA and the Google Privacy Policy and Terms of Service apply.

Register for Inspection

33A Michael Street, Yokine WA

This site is protected by reCAPTCHA and the Google Privacy Policy and Terms of Service apply.

Send Requirements

Find Me a Property

This site is protected by reCAPTCHA and the Google Privacy Policy and Terms of Service apply.