Modern Family Living Opposite Leafy Robinson Reserve

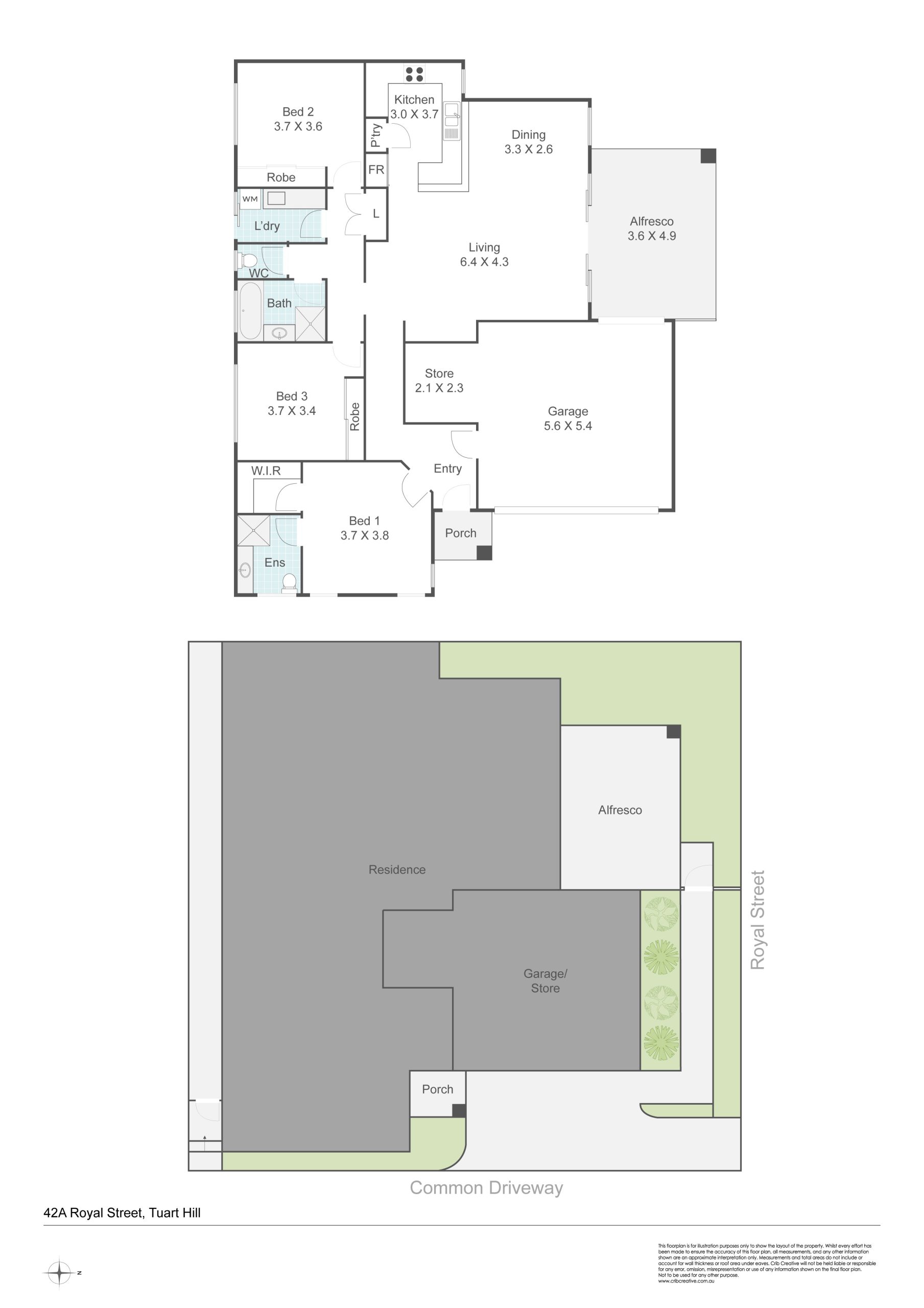
Perfectly positioned directly across from the lush greenery of Robinson Reserve, this modern three-bedroom home delivers comfort, space, and an exceptional lifestyle in a highly sought-after location. Step inside to discover a light-filled and spacious open plan living and dining area, creating the ideal setting for relaxed family living and entertaining.

The well-equipped kitchen is ready for culinary adventures, offering excellent functionality and seamless connection to the main living area. Sliding doors open to a well-sized private courtyard featuring an alfresco entertaining area with café blinds, creating the perfect space to enjoy year-round outdoor living. Ducted reverse cycle air conditioning throughout ensures comfort in every season, while plantation shutters, a security alarm system, and solar panels add further appeal and efficiency.

The master bedroom is generously sized and features a walk-in robe and private ensuite, while the second and third bedrooms are also well-proportioned and include built-in robes. The main bathroom is well appointed with a bath and separate shower, complemented by a separate WC and internal laundry for everyday convenience. A large double garage provides excellent storage options and includes roller door access to the courtyard.

Ideally located directly opposite Robinson Reserve and within close proximity to Servite College, the vibrant Main Street café strip, and Grenville Reserve, this home offers outstanding lifestyle convenience. The Perth CBD is just a short drive away, with excellent public transport options nearby. This impressive home will attract strong interest from first home buyers, families, downsizers, and investors seeking quality and location.

Features include:

• Three spacious bedrooms
• Master bedroom with walk-in robe and private ensuite
• Built-in robes to second and third bedrooms
• Light-filled open plan living and dining area
• Well-equipped kitchen with ample storage and bench space
• Main bathroom with bath and separate shower
• Separate WC
• Internal laundry
• Ducted reverse cycle air conditioning throughout
• Plantation shutters
• Security alarm system
• Solar panel system for energy efficiency
• Private courtyard with alfresco entertaining area
• Café blinds to alfresco area
• Double garage with storage space
• Roller door access from garage to courtyard
• Positioned directly opposite leafy Robinson Reserve
• Close to Servite College
• Short drive to Main Street café strip
• Close to Grenville Reserve
• Easy access to Perth CBD
• Excellent access to public transport

Strata Levies: Nil
Council Rates: $1,981 p.a.
Water Rates: $1,420 p.a.

Find out your property’s worth today by contacting Paul Holdsworth on 0407 081 050 or Dante Holdsworth on 0421 672 695.

Disclaimer:
This information is provided for general information purposes only and is based on information provided by the Seller and may be subject to change. No warranty or representation is made as to its accuracy and interested parties should place no reliance on it and should make their own independent enquiries.

Show More

Property Features

  • Aircon
  • Alarm System
  • Bath: 2
  • Bedrooms: 3
  • Built in Robes
  • Courtyards
  • Garages: 2
  • Garden
  • Internal Laundry
  • Outdoor Entertaining
  • Remote Garage
  • Reverse Cycle Aircon
  • Secure Parking
  • Solar Panels

Nearby Amenities

Servite College
600m
Saint Kieran Catholic Primary School
700m
Osborne Park Primary School
800m
Tuart Hill Primary School
800m
Tuart College
900m
Urban Grind on Royal
300m
Little Donkey Corner
1km
Mid-Century Cafés
1.4km
Delio
1.7km
Micrology Coffee
1.8km
Robinson Reserve
100m
Grenville Reserve
700m
Joondanna Reserve
1.2km
Macedonia Park
1.2km
Conway Reserve
1.3km

Mortgage Calculator

$

5%

0.1%

5%

$1421

Monthly Payment

Principal & Interest $1421

Annual Fee $1421

Send Enquiry

Book Appraisal with Holdsworth Real Estate

This site is protected by reCAPTCHA and the Google Privacy Policy and Terms of Service apply.

Send Enquiry

42A Royal Street, Tuart Hill WA

This site is protected by reCAPTCHA and the Google Privacy Policy and Terms of Service apply.

Buy A Property

Make an Offer

42A Royal Street, Tuart Hill WA

Buyer 1 Details


Buyer 2 Details (if applicable)


Ownership Type


Offer Details


Conditions



This site is protected by reCAPTCHA and the Google Privacy Policy and Terms of Service apply.

Register for Inspection

42A Royal Street, Tuart Hill WA

This site is protected by reCAPTCHA and the Google Privacy Policy and Terms of Service apply.

Send Requirements

Find Me a Property

This site is protected by reCAPTCHA and the Google Privacy Policy and Terms of Service apply.